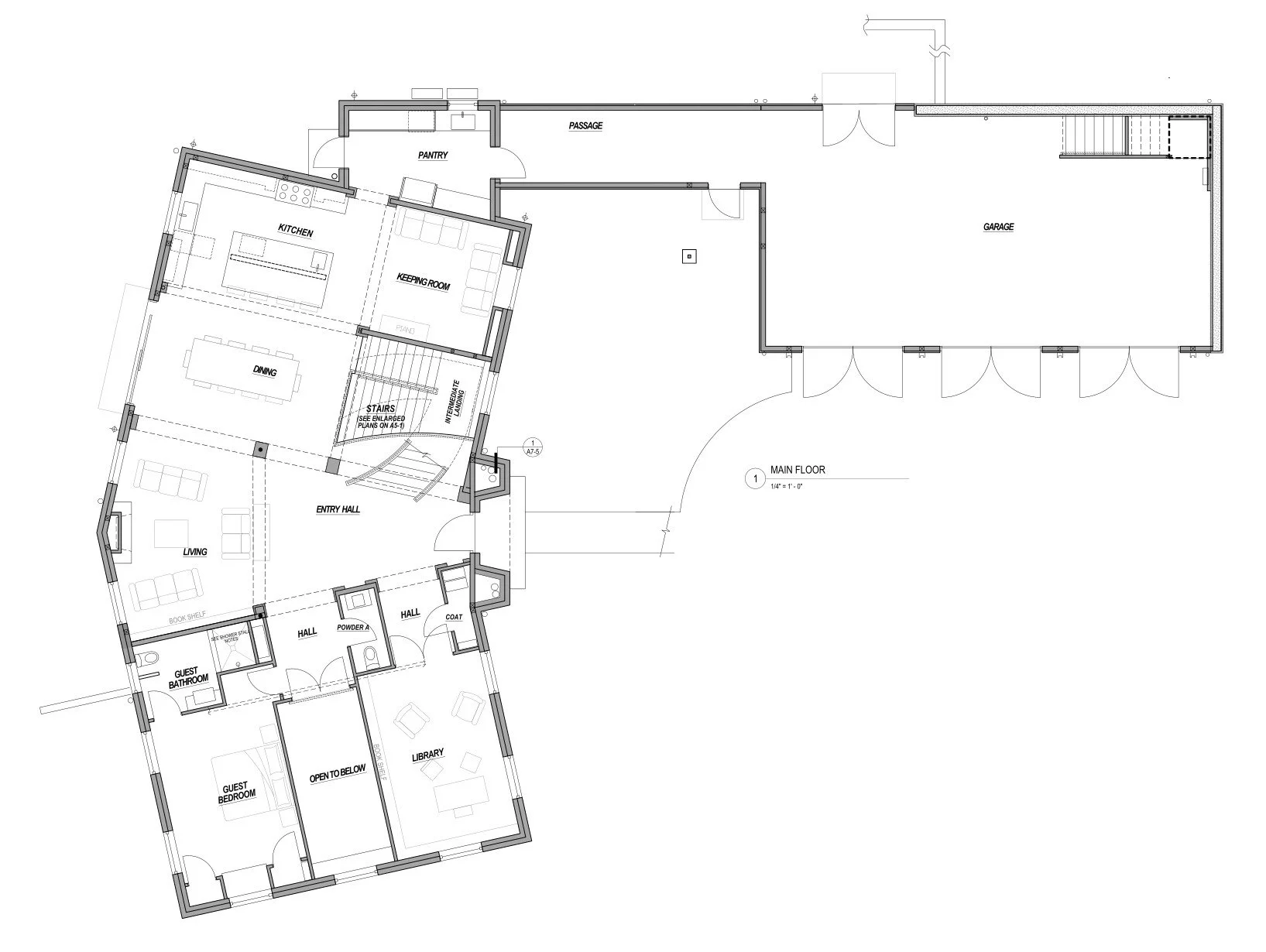
Homeowners requested a PHIUS certified passive house in a design reminiscent of “Rural European, French Country…but with modern pop”
This project is currently in for permitting & has passed PHIUS first round of review with minimal corrections.
Construction is expected to start mid-2025.
